ГлавнаяКаталог продукцииПодъемно-транспортное оборудованиеТалиТали пневматические цепные

Таль пневматическая передвижная TYD-6 тн с пневмотележкой. Цены. паспорта.

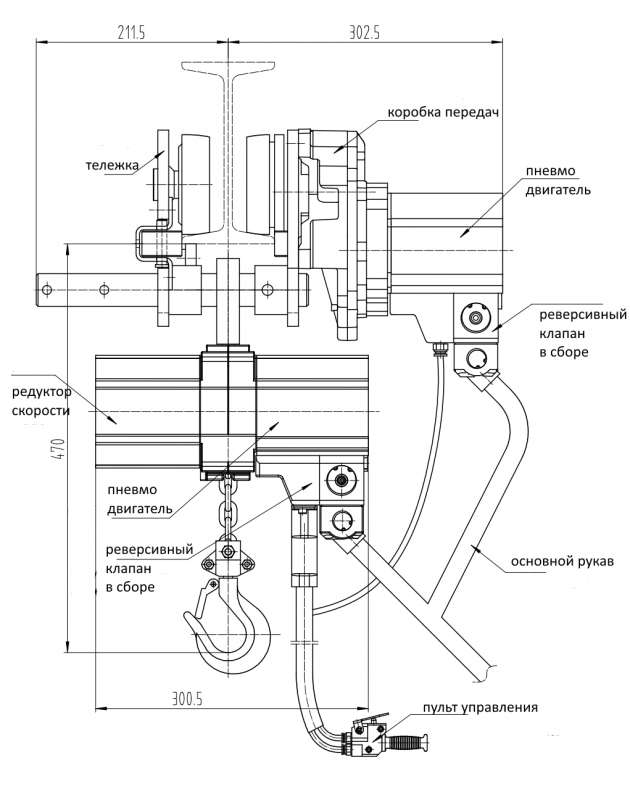
Таль пневматическая передвижная TYD-6 тн

Таль пневматическая передвижная TYD-6 тнТаль пневматическая передвижная ВБИТаль пневматическая ВБИ 6 тнсхема тали пневматической передвижной
985 520 руб.

Грузоподъёмность: 6000 кг

Мощность двигателя: 3,5 кВт
Скорость передвижения: 5/12 м/мин
Потребление воздуха: 1,3 м/мин
Уровень шума: 128 Дб
Размер цепи: 13*36
Вес 1м цепи дополнительной высоты подъёма: 3,8 кг
Высота подъёма: 3 м

При коэффициенте занятости 100% и неограниченном числе включений эта пневматическая таль на 6 тн готова к тяжелому режиму эксплуатации. Эта модель невосприимчива к загрязнению, влажности, и агрессивным окружающим средам. Четкое разделение конструктивных узлов (3-х узловая конструкция) обеспечивает простое техническое обслуживание, не требующее больших затрат.

Практически бесшумная в работе за счет шумопоглотителя. 

Эффективное и чувствительное управление с помощью подвесного пульта управления с 4 кнопками и кнопкой аварийного отключения.

Оптимальная конструкция планетарного редуктора, работающего в масляной ванне, отличается особой плавностью хода и обеспечивает небольшую конструктивную высоту.

У пневматической тали плавный ход цепи за счет звездочки грузовой цепи с 5-ю гнездами.

Совет от производителя - Помните, с целью обеспечения безупречной работы цепной тали с пневматическим приводом сжатый воздух для привода должен быть отфильтрован и промаслен!

Дополнительные опции:


- Модификации подвесов. Исполнение на крюке, с крантележкой холостой без привода или с пневматическим приводом , или с цепным приводом 

- Цепь и крюк. Цепь и/или крюк из нержавеющей стали.

- На заказ: тросовое управление, контейнер цепи.

Основные инструкции по технике безопасности пневматической тали

Использование пневматической тали должно соответствовать требованиям действующих нормативных документов и правилам безопасности. Руководство предназначено для ознакомления с методами безопасной эксплуатации оборудования.

Персонал, работающий с оборудованием, должен быть обучен правилам безопасной эксплуатации и технического обслуживания, а также управлять пневматическими талями. Прежде чем приступить к работе, внимательно изучите руководство.

1.1. Запрещается поднимать людей или поднимать/перемещать грузы над людьми.

1.2. Запрещается перегружать оборудование.

1.3. При подъеме груз должен располагаться в средней части крюка.

1.4. Не допускается перекручивание, узлы и повреждения цепи/каната.

1.5. Запрещается использовать неисправную пневматическую таль.

1.6. Запрещается использовать таль, потерявшую устойчивость (вышедшую из равновесия).

1.7. Запрещается длительное время удерживать груз на весу.

1.8. Запрещается использовать верхний и нижний ограничители хода в качестве тормоза.

1.9. Запрещается тянуть/поднимать груз под углом.

1.10. Запрещается вносить изменения в конструкцию или в методы эксплуатации.

Купить цепные пневматические стационарные и передвижные тали, получить подробные консультации, уточнить информацию о наличии и сроках доставки, а также сделать заказ Вы можете у наших специалистов по телефону 8-800-350-56-90 по рабочим дням с 8:00 до 17:00 часов.

Оставьте отзыв

Имя*:

* — Поля, обязательные для заполнения

Похожие товары

Ролик 190 мм (г/п - 3,2 т) канат 11-14 мм

190 мм * канат 11-14 мм

6 150 руб.
 Таль электро цепная УСВ  1 тн 6 м цена

1 тн *  6  м * 7 м/мин, передвижная 20 м/мин, 380в

196 855 руб.
МПУ 2 тн  3*3 м УПМ

Грузоподъемность: 2 тн * Пролет: 3 м * Высота подъема: 3 м.

122 410 руб.
РемОснастка - whatsapp