Грузоподъемность: 1 тн
Пролет: до 6м
Номер балки (двутавра): 20, 24
Высота подъема: до 4,5 м.
Масса крана: от 300 кг
Цена указана при пролете 3 м. и высоте подъема 3 м. с НДС (без тали)
Регулировка по высоте: +50% к стоимости
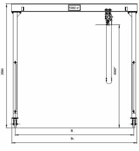
Устройство состоит из тали, балки пролетной, балок опорных, стоек, укосин, колес поворотных с тормозом, которые крепятся между собой стандартными крепежными изделиями.
• Пролетная балка - это двутавровая балка с приварными фланцами для крепления ее к стойкам. Опорные балки и стойки выполнены из профиля квадратного сечения (или сварены из швеллеров) с приваренными фланцами.
• Рабочим органом устройства является таль ручная цепная г/п 1 тонна. Таль и механизм передвижения тали поставляются отдельно.

Устройство перегрузочное (кран козловой, кран портальный, передвижной кран) состоит из балки пролетной, балок опорных, стоек, укосин, колес поворотных (из них - два с тормозом), которые крепятся между собой стандартными крепежными изделиями. Пролетная балка служит для навешивания тали. Изготавливается из двутавра марки М (с косыми полками)
Для того, чтобы кран был устойчив, желательно, чтобы ширина пролета и высота подъема были примерно равнозначны. При равных составляющих конструкция УПМ максимально устойчива.
Пролетная балка мобильного перегрузочного устройства представляет собой двутавровую балку с приварными фланцами для крепления ее к стойкам. Опорные балки и стойки выполнены из профиля квадратного сечения (или сварены из швеллеров) с приваренными фланцами.
Рабочим органом устройства перегрузочного является таль ручная цепная
Таль ручная шестеренная не входит в состав комплекта поставки УПМ и поставляется по дополнительному заказу!!!
ОСНОВНЫЕ СВОЙСТВА
- Перегрузочное устройство (козловой кран) может эксплуатироваться как в закрытом помещении, так и на открытом воздухе в зависимости от вида тали, установленной на УПМ. В части воздействия климатических факторов устройство соответствует исполнению У1 ГОСТ 15150. Разрешается эксплуатация при температуре окружающей среды не ниже минус 40 град С.
- Техническое обслуживание перегрузочного устройства (передвижного крана) предусматривает: наружный осмотр металлоконструкций с целью обнаружения трещин и деформаций; очистку от пыли и грязи опорных колес; проверку состояния болтовых соединений и их подтяжку при необходимости. Техническое обслуживание тали - согласно паспорту на таль.
- Мобильное перегрузочное устройство должно эксплуатироваться в соответствии с Федеральными нормами и правилами в области промышленной безопасности «Правила безопасности опасных производственных объектов, на которых используются подъемные сооружения», инструкцией по безопасному ведению работ для стропальщиков (зацепщиков), обслуживающих грузоподъемные краны, а также с соблюдением мер безопасности, указанных в паспорте и руководстве по эксплуатации на изделие.
- Перегрузочное устройство (кран козловой) не допускается эксплуатировать в радиоактивных и пожароопасных средах, а также для подъема и перемещения людей, ядовитых веществ, жидкого и раскаленного металла.
- Изготовитель гарантирует соответствие устройства перегрузочного УПМ требованиям ТУ при соблюдении потребителем условий эксплуатации, транспортирования и хранения, изложенных в паспорте. Срок гарантии 12 месяцев со дня ввода устройства в эксплуатацию, но не более 18 месяцев со дня отгрузки с предприятия-изготовителя.
По Вашему заказу изготовим передвижной кран (УПМ) с необходимым Вам пролетом и высотой подъема.
В таблице приведены данные типовых кранов:
| Параметры |
УПМ1-3 |
УПМ 1-4 |
УПМ 1-5 |
УПМ 1-6 |
| Ширина пролета, м |
3 |
4 |
5 |
6 |
| Длина крана, м |
3,18 |
4,18 |
5,18 |
6,18 |
| Макс. горизонт. перемещение |
2,38 |
3,38 |
4,38 |
5,38 |
| Номер балки |
20 |
20 |
24 |
24 |
| Масса крана, кг |
300 |
320 |
375 |
405 |
Комментарии